Covering Lincoln and surrounding areas   info@propertiesonthemarket.com     0300 303 8500

Search Properties

Craven Street, Lincoln, Lincolnsire, LN5 8DQ

Lincoln, Lincolnshire

£499 pcm

Department:
Lettings
Type:
House
Availability:
To Let
Bedrooms:
1
Bathrooms:
1
Receptions:
1
Furnished:
Furnished
Deposit:
499
Available Date:
2025-07-24
Location:
Lincoln, Lincolnshire
Rent:
£499 pcm

Property features

  • Central Heating
  • Internet
  • Electricity
  • TV Licence
  • Water Rates
  • Gas
  • Washing Machine
  • Tumble Dryer
  • Microwave
  • Freezer
  • Vacuum Cleaner
  • Double Bed
  • Back Garden
  • All bills are inclusive
  • Fully furnished
  • 350Mbps speed internet
  • Close to City Centre, Lincoln University
  • Walking distance to plenty of local shops & amenities
  • Close to transport links
  • Monthly cleaning
  • 24 Hours maintenance team
  • Stylish Kitchen
  • Perfect for couples
  • No Pets Unfortunately
  • Friendly housemates

Summary

Hurry! £1 First Month rent for Double Room!

Details

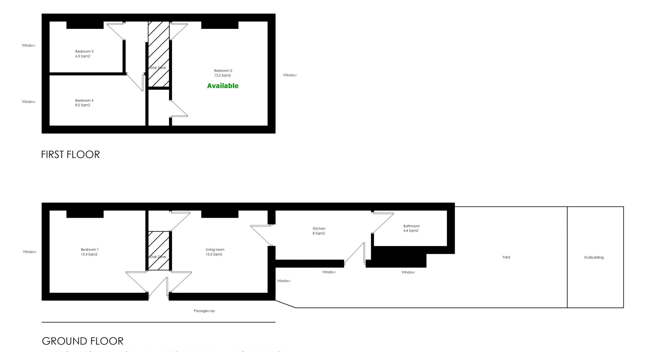
Properties on the Market is delighted to present a delightful two storey brick terraced house with a tiled roof showcasing a spacious large double room within a shared residence.

Hurry! £1 First Month rent for Double Room!

Situated in the ever-popular Sincil bank area, it enjoys convenient proximity to various amenities, including local shops, University of Lincoln and  Lincoln City Centre.

This appealing dwelling comprises four bedrooms and one bathroom.

The focal point is a generously sized, well-equipped kitchen featuring a breakfast bar, complemented by a bright backyard, ideal for relaxation.

The spacious Large double room comes fully furnished with a double bed, wardrobe, chest of drawers, bedside cabinet, and a private fridge freezer. 

All-inclusive bills are covered by reputable providers such as Anglian Water, Scottish Power, and Virgin Media. Additionally, the property benefits from excellent mobile signal coverage for EE, Virgin, O2, and Vodafone.

The deposit equals the rent, providing convenience for potential tenants.

This property is classified under Council Tax Band A and holds an EPC rating of D.

Safety is a priority, as the area and property holds low flood risks and free from coastal erosion, or coalfield proximity.

It's essential to be aware that this property does not offer step-free access, wet rooms, or lateral living arrangements.

 Moreover, pets, home-based businesses, and parking facilities are not accommodated.

For those interested, our friendly team is prepared to arrange a viewing at your convenience.

Floor Plans

EPC

Request Further Details

Or arrange a viewing