Covering Lincoln and surrounding areas   info@propertiesonthemarket.com     0300 303 8500

Search Properties

Craven Street, Lincoln, Lincolnshire, LN5 8DQ, United Kingdom

Lincoln, Lincolnshire

£450 pcm

Department:
Lettings
Type:
House
Availability:
To Let
Bedrooms:
1
Bathrooms:
1
Receptions:
1
Furnished:
Furnished
Deposit:
450
Available Date:
2026-03-24
Location:
Lincoln, Lincolnshire
Rent:
£450 pcm

Property features

  • Central Heating
  • Internet
  • Electricity
  • TV Licence
  • Water Rates
  • Gas
  • Washing Machine
  • Tumble Dryer
  • Microwave
  • Cooker
  • Freezer
  • Double Bed
  • Back Garden
  • All bills are inclusive
  • Fully furnished
  • High speed unlimited broadband
  • Close to City Centre, Lincoln University
  • Walking distance to plenty of local shops & amenities
  • Close to city centre
  • Close to transport links
  • Parking
  • Lovely Backyard
  • 1 Bathroom & 1 Toilet
  • Monthly cleaning
  • 24 Hours maintenance team
  • Stylish Kitchen
  • Perfect for couples
  • No Pets Unfortunately
  • Friendly housemates

Summary

Double Room Bliss – £1 First Month Only!

Details

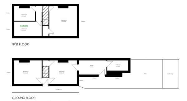
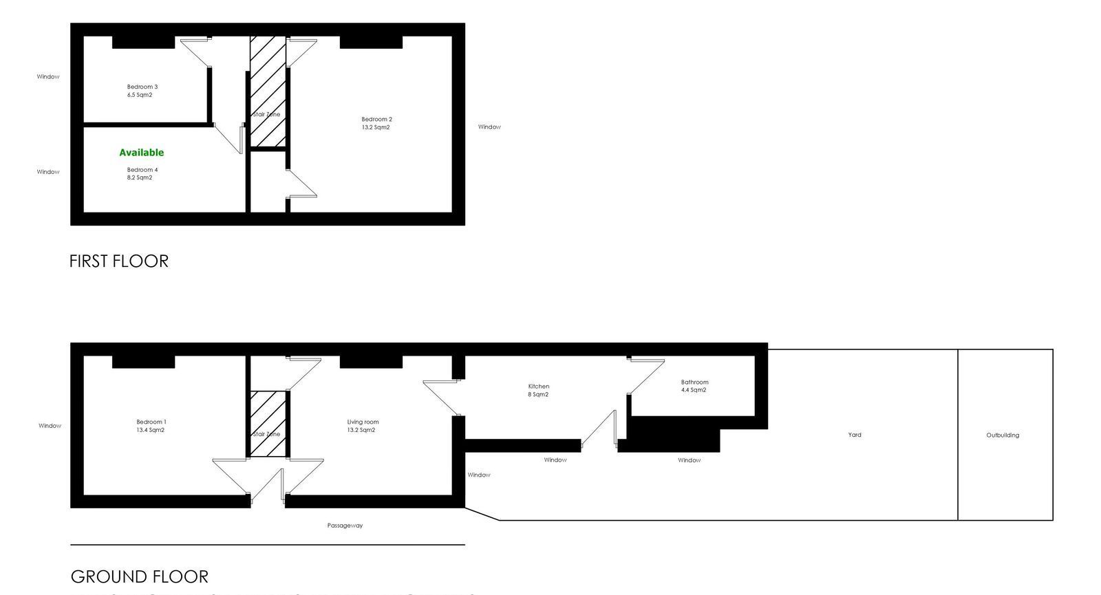
Properties on the Market is delighted to present a delightful two-storey brick terraced house with a tiled roof showcasing a spacious double room within a shared residence.

Double Room Bliss – £1 First Month Only!

Situated in the ever-popular area, it enjoys convenient proximity to various amenities, including local shops, Supermarkets, Lincoln City Centre, University of Lincoln, and the Tritton Retail Park.

This appealing dwelling comprises four bedrooms and one bathroom. The focal point is a generously sized, well-equipped kitchen featuring a breakfast bar, complemented by a bright backyard, ideal for relaxation.

The spacious double room comes fully furnished with a double bed, wardrobe, chest of drawers, bedside cabinet, and a private fridge freezer. 

All-inclusive bills are covered by reputable providers such as Anglian Water, Scottish Power, and Virgin Media. Additionally, the property benefits from excellent mobile signal coverage for EE, Virgin, O2, and Vodafone.

The deposit equals the rent, providing convenience for potential tenants.

This property is classified under Council Tax Band A and holds an EPC rating of D.

Safety is a priority, as the area and property are free from flood risks, coastal erosion, or coalfield proximity.

It's essential to be aware that this property does not offer step-free access, wet rooms, or lateral living arrangements. Moreover, pets, home-based businesses, and parking facilities are not accommodated.

For those interested, our friendly team is prepared to arrange a viewing at your convenience.

Request Further Details

Or arrange a viewing